
בניה קלה למגורים
שיטה חדשנית לבנייה קלה ומהירה של בית מוכן הכולל:
תכנון המבנה עם אדריכלית מרמת החלוקה הפנימית ועד רמת הגימור!
6,900 ש"ח למ"ר בנייה!
* המחיר לא כולל מע"מ, הובלה וביסוס
לתיאום שיחת ייעוץ ללא התחייבות:
חבילת בית מוכן - הכל כלול
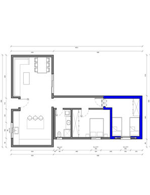
ממ"ד
01
דלתות פנים ודלת כניסה
02
כלים סניטריים
03
אלומיניום
04
ריצוף
05
שליכט צבעוני
06
ארון ושקעי חשמל
07
(כולל גופי תאורה)תאורה לפי חלוקה
08
הכנה לטלויזיה בכל חדר
09
הכנה למכונת כביסה
10
הכנה למערכת גז
11
הכנה לארכת יסוד
12
חיבור ומתג לדוד שמש
13




דגמי בית מוכן בבנייה טרומית לדוגמה
המודלים המוצגים הם להמחשה בלבד, הבית ייבנה לפי תכנון אישי עם אדריכלית.
למה כדאי לבנות בית מוכן בשיטה של בניה טרומית, קלה ומהירה
הודות לטכנולוגיות עדכניות שרותמות את כל החידושים ההנדסיים של הבנייה המתועשת, בתים מוכנים למכירה הפכו לאלטרנטיבה מצוינת והם מוכנים במהירויות שיא הודות לשיטות המאפשרות בנייה מהירה במיוחד. המוצר הסופי הוא בית מוכן שניתן לאכלס בנוחות ובלי לוותר על איכות או עיצוב מותאם.
בניה טרומית, הנקראת גם בניה קלה מתועשת, היא שיטת בניה של מבנים באמצעות הרכבת מודלים מוכנים מראש. שיטה זו מחלקת את המבנה לחלקים עיקריים, המכונים כאמור מודלים, שנבנים במפעל סגור ומבוקר לפני המעבר לאתר הבניה, ממנו משונעים חלקי המבנים לאתרי הבניה.
לפיכך, תהליך הבניה באתר עצמו כולל רק את הרכבת חלקי המבנה שהוכנו מראש. תהליך עבודה ייחודי של בניה קלה מוזיל באופן משמעותי את עלויות הבניה בהשוואה לבנייה המסורתית בשל היעילות והמהירות של התהליך.
בניה קלה עד מפתח
חברת עופרים הנדסה ובנייה בע"מ תספק לכם שירות מקיף של קבלן העובד בשיטת הבניה הטרומית, ותהיה אחראית על כל תהליך הבניה. אנו נלווה אתכם משלב גיבוש תוכנית הבניה והעיצוב, דרך טיפול בסוגיה של היתר הבניה ותוך הכנה של כל הדרוש על מנת לקבל את היתר הבניה כחוק, וכן כמובן תהליך הבניה עצמו, עד לקבלת המפתח לבית.
המלצות על בנייה טרומית
בניה טרומית איכותית! מה היתרונות?
-
מחירי הבניה הטרומית זולים משמעותית ביחס לבניה קונבנציונאלית. החסכון המשמעותי של הבניה הקלה נובע בעיקר ממהירות תהליך הבניה שלה.
-
בניה קלה באמצעות בטון מספקת הגנה מיטבית מפני מפגעי מזג האויר. בנוסף, חלקי המבנה מבטון עמידים לאורך שנים ארוכות, מה שמפחית את הוצאות התחזוקה והבלאי שלהם.
-
בשונה מהתהליך הרגיל של בניית בית שהוא ממלכת אי הודאות, כאן לוח הזמנים ברור, קצר ונטול עיכובים. מה שהופך את הבית המוכן לבנייה הקלה ביותר שאי פעם תפגשו.
-
בשיטת הבנייה הקלה מקבלים בית מוכן תוך ארבעה חודשים בלבד! עשרה חודשים מהירים יותר מזמן הבנייה של בית בשיטה הקונבנציונאלית. נוסף על כך, מכיוון שהכול רץ על פס ייצור, אין בלת''מים, בעיות בזמנים או בעיות נוספות שמאפיינות קבלני בנייה שעובדים בשיטה המסורתית.
-
חשוב להדגיש - למרות שמדובר בבנייה קלה, בית מוכן אינו תבנית אחידה שנמסרת מראש לכל לקוח ללא הבדל. הבנייה הקלה המודולרית מאפשרת התאמה של הדגם לצרכים הספציפיים של כל לקוח. כך כל דייר נהנה מבית מוכן, איכותי ומותאם אישית, גם מבחינה אדריכלית. יש מקום רב לאמירה האישית של הלקוח ולגמישות בהליך הבנייה.
-
יש לזכור שחלקי הבניה הקלה משונעים מהמפעל לאתר הבניה. לפיכך, ניתן לשנע אותם בשנית בקלות יחסית במידת הצורך.
-
פרוצדורת הבניה הקלה מתרחשת במפעל סגור ומפוקח, כך שבאתר הבניה עצמו נותר רק להרכיב את חלקי הבית המוכן יחדיו - מה שמונע תקלות שבדרך כלל מתרחשות באתר הבנייה בתהליכים של בנייה קונבנציונלית, דבר שגורר עלויות נוספות ועיכובים. התוצאה היא תהליך בניה מהיר יותר, יעיל יותר, וכך גם זול יותר. המרחב הסטרילי של מפעל הבניה מונע מאירועים בלתי צפויים מלשבש את תהליך הבניה ובכך שומר על התהליך מהיר, איכותי וחסכוני.
מחירון בנייה קלה
ניתן להיווכח בכך שבניה קלה מציעה מחיר משתלם בהשוואה לקונבנציונאלית באמצעות דוגמית המחירון המוצגת.
מי מלווה את כל התהליך?
הצוות המלווה את תהליך הבניה עצמו בשיטת הבניה הטרומית מורכב ממספר אנשי מקצוע מוסמכים, הכוללים אדריכל לבניה קלה שמתמחה בתכנון מבנים מודולריים בשיטת הבניה הקלה. בנוסף, ישנה מעצבת פנים המומחית למבנים בשיטת הבניה הקלה, שכן התאמת העיצוב שונה מאשר מבנים הנבנים באתר הבניה עצמו.
הצוות המקצועי כולל גם, כאמור, קבלן בניה קלה, המלווה את כלל התהליך מתחילתו ועד סופו, מן התכנון ועד למפתח. חברת עופרים היא כאמור חברה קבלנית המתמחה בפרויקטים בשיטת הבניה הטרומית, הן מבחינה בירוקרטית והן מבחינה קונסטרוקטיבית. בכך, החברה הקבלנית מפעילה למעשה את האדריכלים, מעצבי הפנים וצוות הבניה, וכן גם את מפעל הבניה המבוקר.
קצת על התהליך של הבניה הטרומית:
-
מתחילים מפגישת ייעוץ.
-
מודדים את השטח ומתכננים את הפרויקט עם אדריכל.
-
המהנדס מכין תכניות קונסטרוקציה ואנו מגישים אותן לאישור פיקוד העורף.
-
עם אישור התכניות מתחילים לבנות את הבית במפעל.
-
לאחר מכן מכינים את השטח המיועד לבואו של הבית המוכן.
-
לאחר שהשטח הוכן והבית שלך הושלם, כל מה שנותר הוא הובלה וזהו, בית החלומות מוכן ומזומן למגורים.
בית מוכן כולל ממ"ד
אנו מתמחים בבניית ממ"דים בשיטה מתקדמת ויודעים איך לשלב אותם בקלות כחלק מתהליך הבניה הקלה בצורת מודל נוסף שמתחבר עם הבית המוכן שלכם.
הממ''ד בבית המוכן שלכם מגדיל את ערכו של הבית במאות אלפי שקלים (תלוי באיזורים בארץ) בהשוואה לבתים שאין בהם מרחב מוגן. באזורים רבים בישראל (יישובי קווי העימות) המדינה מממנת מענקים עבור בניית ממ''ד, המשתנים בסכומם לפי סוג הנכס.
צריך לזכור גם שבחיי היומיום ממ''ד מוכן הוא חדר לכל דבר אשר יכול לשמש כחדר משחקים, חדר שינה, מחסן ועוד. אופציה מעשית למדי היא למקם את חדר הילדים במרחב המוגן, כך שגם בעתות חירום הילדים יוכלו לישון ולחיות בחדרם בשקט יחסי.
מדוע לבחור בנו עבור פרויקטים של בנייה קלה?
משום שאנו חברת בניה טרומית מהמנוסות בתחום, אנו עוסקים בתחום עשרות שנים, כאשר את כל הניסיון שלנו אנו משקיעים בלקוחותינו. אנו מאמינים כי ניסיון שווה את משקלו בזהב, ושניתן לראות אותו בכל שלבי הפרויקט, מהתכנון המשותף ועד הביצוע. אנחנו נלווה אתכם לאורך כל הדרך ונספק לכם מעטפת שירות אשר תסיר כל דאגה מליבכם.
יתרה מכך, באמצעות הצוות המקצועי שלנו, אשר בקיא בכל הליכי האישורים, התקנות והביצוע בשטח, אנו מסוגלים לרכז את כל הדרוש מקצה לקצה על מנת להבטיח את השירות המקצועי והאמין ביותר החוסך מאבקים בירוקרטיים הגוזלים זמן וכוח. אז תנו לנו לעשות את מה שאנחנו מכירים הכי טוב, ותשאירו את הדאגות לנו.
טבעי שעדיין יהיו לכם שאלות, אחרי הכל אתם מקבלים עכשיו החלטה לבנות בית שתגורו בו בנחת במשך שנים. בנינו עבורכם מרכז מידע ענייני ונוח בו תוכלו לקבל תשובה לכל שאלה שעולה לכם לפני שאתם מקבלים את ההחלטה לבנות את ביתכם בשיטת הבנייה הקלה. הקליקו למעבר למרכז המידע
































